中部商事株式会社

HOME > 不動産を買いたい

中古住宅

南西角地で日当たりOK♪フルリフォームにて使いやすくなった4SLDK!駐車場4台可能♪

所在地
松本市寿台7丁目 1-9

価格 2680 万円

土地面積公簿  339.82㎡ (102.79坪)

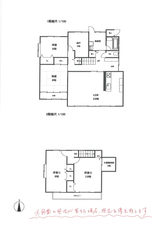
間取り4SLDK

建物面積142.39㎡(43.07坪)

担当者より

/

所在地 松本市寿台7丁目 1-9 建物名
価格 2680万円 消費税内税額
土地面積 公簿  339.82㎡ (102.79坪) 建物面積 142.39㎡(43.07坪)
間取 4SLDK 構造 木造
詳細間取 その他一時金
総階数 2階  完成年月 1974年3月
湯権 下水道 公共下水道
通学区 松本市立明善小学校 (600m)
松本市立明善中学校 (800m)
引渡/入居日 2026年2月予定
手数料 不要 私道負担面積
接道状況 方角:南 道路幅員:4.4m 公私区分:公道 
方角:西 道路幅員:4.6m 公私区分:公道 
設備 システムキッチン・カウンターキッチン・食器洗浄乾燥機・火災警報器(報知機)・TVモニタ付きインターホン・ディンプルキー・温水洗浄便座・バス1坪以上・オートバス・浴室乾燥機・追焚機能・暖房便座・BT別室・バルコニー・エアコン・外物置・日当り良好・閑静住宅街・リフォーム済み・上水道・給湯・洗髪洗面化粧台・出窓・照明器具付き・電気・プロパンガス・側溝・下水道・複層ガラス・駐車場3台分
駐車場 有  4台可 
施工会社
交通 電車: 篠ノ井線村井駅 距離2600m 徒歩33分 
備考 リフォーム内容 駐車場増設工事・外壁等塗装・玄関戸交換・下駄箱交換・内装クロス張替え・CF張替え・照明交換(一部新設)・防蟻工事・キッチン・背面収納・洗面台・ユニットバス交換・一部間取り変更・フローリング上張り・畳表替え・障子・襖張替え・勝手口・外物置鍵交換・エアコン交換(リビング)・火災報知器設置・モニターホン交換・ガス給油器交換・カーテンレール交換・リビング南側窓窓交換(2か所)・インナーサッシ設置(1部)ポーチタイル張替え・グレーチング設置・一部砕石敷き・全室クリーニング・その他
管理番号 取引態様 売主
最終更新日 2026-01-10

マップ

※物件位置が表示されていない場合もあります。 正確な位置は取り扱い会社へお問い合わせください

物件のお問い合わせ

物件情報 物件番号:447649 / 中古住宅 / 松本市寿台7丁目1-9 / 価格:2680万円
お名前 必須
電話番号 必須
FAX
※FAXで資料送付をご希望の方は、必ず入力してください。
メールアドレス 必須
資料送付先 郵便番号 
住所 
※郵送で資料送付をご希望の方は、必ず入力してください。
お問い合わせ種別 資料をメールで送ってほしい
資料をFAXで送ってほしい
資料を郵送してほしい
現地を見てみたい
電話で聞きたい
ご質問内容
ご希望の条件、ご予算、その他質問事項があればご記入ください

※お使いのメールサービス、メールソフト、ウィルス対策ソフト等の設定により「迷惑メール」と認識され、メールが届かない場合があります。(特にgmailやYahoo!メールなどのフリーメールをお使いの方)
その場合は「迷惑メールフォルダー」等をご確認いただくかお使いのサービス、ソフトウェアの設定をご確認ください。

お問い合わせ

メールでのお問い合わせ

長野県松本市寿南1丁目34番3号オフィス田川2F
TEL:0263-86-3977/FAX:0263-86-3976
長野県知事(12)第2081号

© 2026 chubu-shoji.